上海浦发盛捷壹滨江服务公寓(Somerset Pudong Riverside)位于浦东内环昌邑路歇浦路路口,毗邻两条主干道(浦东大道和世纪大道)和三条过江隧道(大连路隧道、新建路隧道、人民路隧道),距离黄浦江直线距离仅约250米。

物业周边4公里范围内覆盖陆家嘴金融中心、IFC国金中心、正大广场、浦东八佰伴等主要地标场所。14号线歇浦路地铁口位于物业东侧300米,18号线昌邑路地铁口位于物业西侧800米。距上海虹桥国际机场和上海虹桥火车站约25公里。

上海浦发盛捷壹滨江服务公寓是当地综合开发体的一部分,拥有三座大楼共计611个单元,房型包括单房公寓及一房豪华行政套房,同时设有早餐厅、健身房、瑜伽室等配套设施。

公寓户型
| 0.9-1.1万 | ||
上海浦发盛捷壹滨江服务公寓租赁电话: 15921786368
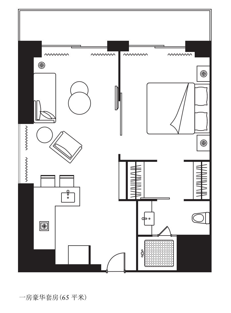
单房公寓




一房豪华套房套房配置齐全,有独立的起居空间,让住客可以拥有休闲放松的场所;65平米的房间配有1张加大双人床,别致的一体化设计以及便利设施让您体验轻松愉悦的生活方式。




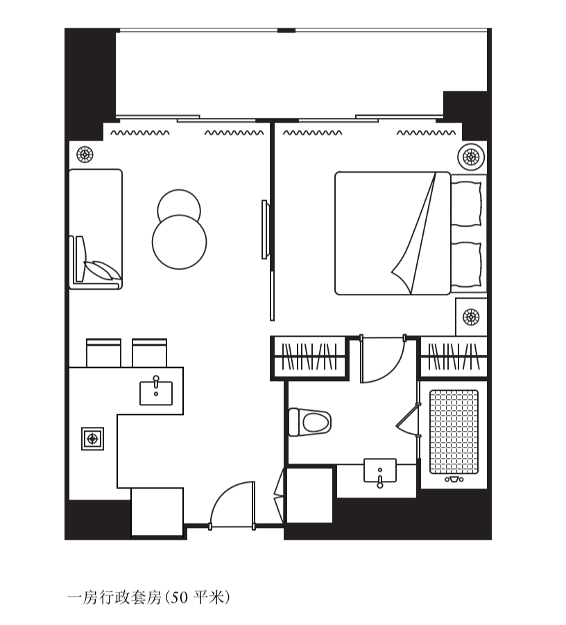
一房行政套房



一房行政套房







公寓配套
公寓设有诸多配套设施,如:健身房、早餐厅、瑜伽室。设备齐全的健身房让您尽情挥洒汗水;早餐厅提供简约健康的欧陆式美食,让上班族们在忙碌中兼顾营养;您还可以在瑜伽室冥想放松,来一场专注的心灵疗愈之旅。
公寓为每一位客人准备了美味营养、品种丰富的自助早餐,中西菜式结合,更有当地特色佳肴,让您用味蕾开启活力每一天。
设备齐全的健身房,让您在工作之余尽情挥洒汗水,时刻保持健康活力。
大堂

休闲商务区

健身房
设备齐全的健身房,让您在工作之余尽情挥洒汗水,时刻保持健康活力。

瑜伽室

【周边设施】:
LCM置汇旭辉广场 860米
盒马鲜生 829米
滨江光合新座 1.1公里
万吨粮仓(网红打卡点) 1.3公里
泾东公园 961米
浦商百货 1.2公里
家乐福超市 2.6公里
上海轮渡歇浦路渡口 900米
金桥国际商业商场 3.7公里
东方渔人码头 4.7公里
上海国医馆步行268米
上海交通大学医学院附属仁济医院 2.4公里
【公寓配置】:公寓拥有611套典雅奢华套房,从单房公寓到一房豪华行政套房,每套客房均拥有独立的客厅,餐区及阳台,设施齐全的厨房及高速上网服务等。房间配置卡萨帝电器及Honeywell净水器。公共区域设有诸多配套设施,如:健身房、早餐厅、瑜伽室。
【租金包含】:发票,物业费,每周两次打扫,每周一次换洗床单,10元/平米/月水电费补助,WIFI,健身设施
租赁咨询:
159-2178-6368
info@knowapartments.com